The Belnord

Project: The Belnord, originally built in 1909

Scope: Renovation of a Private Residence

Completed: March 2021

Location: Upper West Side, New York City

Client: Confidential

Interior Designer: Gail Horn

Contractor: Empire ECS LLC

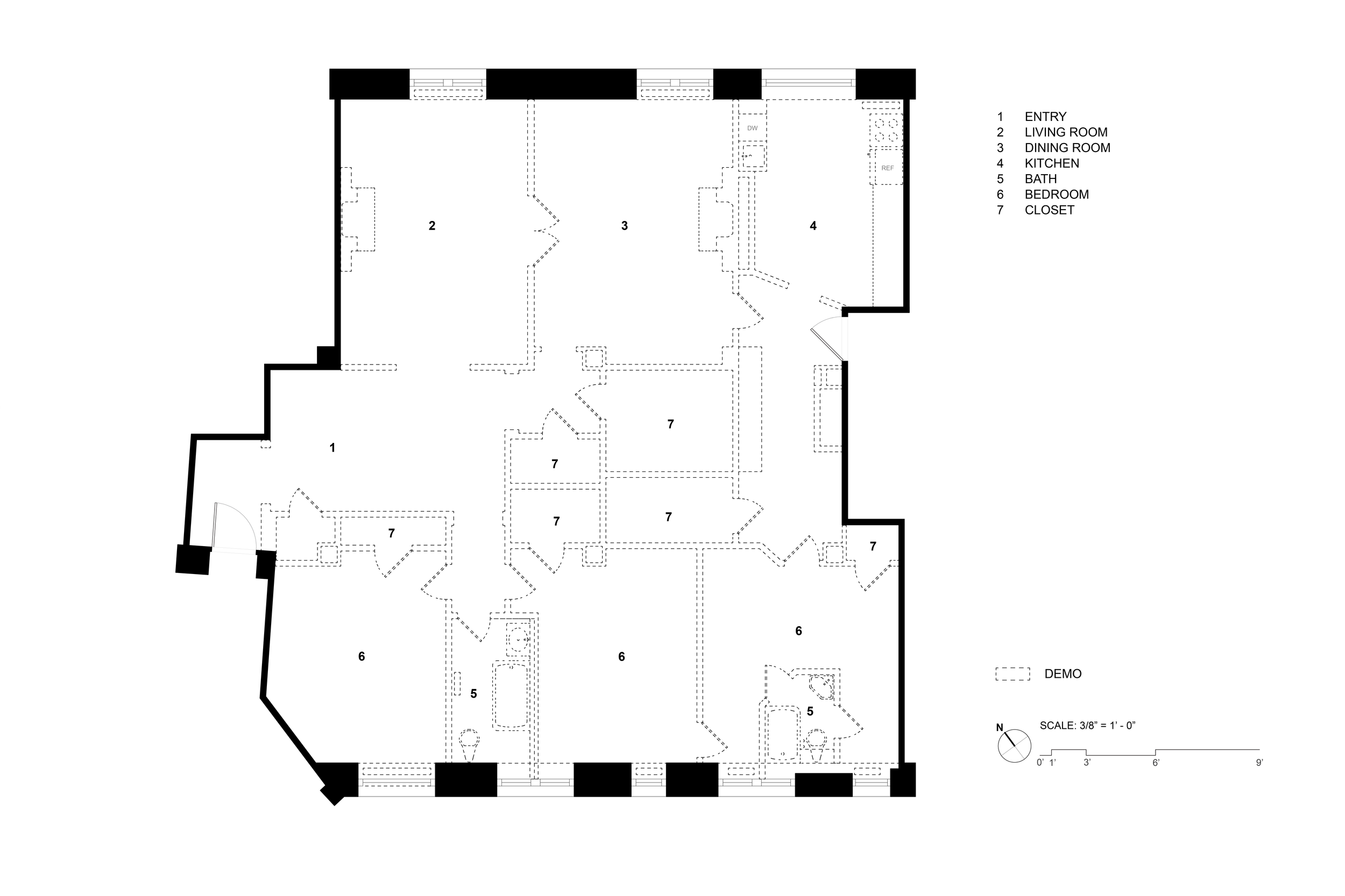
Floor Plans

Before/After Toggle Pure CSS
Before Image After Image

Before Photos

Get in touch

Next
Next

Mayfair Towers